Hormann
+7 (4012) 92-06-07 +7 921 10 45 333 office@kapelev.ru г.Гурьевск, Безымянная, 2

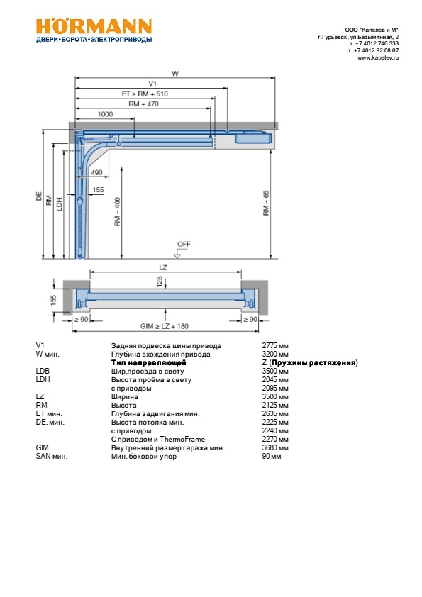
Ворота секционные Hormann LPU 42 3500x2125 мм Planar Matt deluxe L-гофр цвет 9016 (белый)

Двустенные ворота LPU с эффективной теплоизоляцией являются хорошим техническим решением для пристроенных к дому гаражей или при наличии входа из гаража в дом.

Доступность: Под заказ
127050,00 руб

оплата

Стоимость указана для ознакомления и не является публичной офертой.

Оплата заказа осуществляется после заключения договора согласно выставленным счетам.

доставка

Доставка осуществляется по отдельному договору и не включена в стоимость.

Характеристики
Ширина 3500
Высота 2125
Тип панели L-гофра
Цвет Белый (9016)
Текстура Planar Matt deluxe
Наличие Под заказ
Гарантия 5 ЛЕТ
Толщина секции LPU (42мм)
Лучшая теплоизоляция – самый богатый выбор. LPU – секционные ворота высшего качества
Двустенные ворота LPU обладают самой эффективной изоляцией. Рекомендуются, если Вы используете гараж, например, как мастерскую или хотели бы сократить свои затраты на электроэнергию. Наряду с этим, секции толщиной 42 мм обеспечивают еще большую устойчивость и плавное, бесшумное движение ворот.
Коэффициент теплоизоляции: Секции 42 мм.  U = 0,5 Вт/ (м²·К)
Герметичность по всему периметру
Прочное и стойкое к атмосферным воздействиям уплотнение по периметру секционных ворот Hörmann надежно защищает от ветра, дождя и снега. Высококачественные уплотнения между отдельными секциями двустенных ворот служат для дополнительной изоляции. Напольное уплотнение сглаживает небольшие неровности за счет объемного резинового профиля.
Гармоничное общее впечатление
Одинаковые расстояния между гофрами и незаметные переходы между секциями для ворот с гофрами. Гаражные ворота Hörmann отличаются строго равномерным распределением гофров. Секции имеют такую форму, что при закрытых воротах переходы между ними практически незаметны. 
Одинаковый внешний вид направляющей и полотна ворот
Совершенный внешний вид ворот создается благодаря множеству мельчайших деталей: компенсирующая фальш-панель в зоне перемычки поставляется для белых ворот и во всех вариантах исполнения поверхностей всегда одинакового внешнего вида с секциями ворот. У Hörmann все компоненты подходят друг другу. Боковые направляющие поставляются серийно с отделкой поверхности Woodgrain белого цвета.
Оптимальная защита на долгие годы. Защита от застоев воды
Антикоррозийное пластмассовое основание направляющих высотой 4 см обеспечивает надежную защиту ворот в условиях длительной сырости. Подобной системы защиты основания направляющих от коррозии у конкурентов нет. Основание полностью охватывает направляющие в зоне, которая потенциально подвержена ржавчине, обеспечивая надежную долговременную защиту. Вместе с напольным уплотнением ворот основание направляющих создает удачное завершение, в том числе и внешне.
Заказной размер ворот соответствует размеру строительного проема в свету.
Врезка ручки в полотно ворот производится при установке, инструкция прилагается. положение установки: слева/справа по желанию заказчика.
К каждому комплекту ворот прилагается инструкция по установке на русском языке, с подробным описанием и схемами.
После установки ворот в ручном исполнении, впоследствии всегда можно оснастить ворота электроприводом. Мы предлагаем на выбор оснащение приводами ProMatic или Supramatic, производства компании Hormann.
>

возможно вас заинтересует...

Профиль перфорированный L-образный 2500мм , Арт. 796/2

Угловой (L образный)перфорированный профиль . Толщина металла: 2 мм Ширина планок профиля: 30 мм Длина планок профиля: 2500 мм
1320,00 руб
В наличии

Пульт дистанционного управления Hormann, HSE 4 BS, черный . Арт. 4511736; 4511738

Пульт дистанционного управления Hormann, HSE 4 BS, черный
4290,00 руб
В наличии

Привод откатных ворот LineaMatic BS. Арт. 4511323; 4511320

Привод откатных ворот LineaMatic BS
51370,00 руб
Нет в наличии

Комплект автоматики для распашных ворот RotaMatic 2 BS . Арт. 4510966; 4510963

Комплект автоматики для распашных ворот RotaMatic 2 BS
89540,00 руб
Нет в наличии

Ручка-замок комплект, NET-2, Арт. 1311080039; 4015100

Также используется в комплекте с аварийной деблокировкой привода гаражных ворот NET-2, Арт. 437183
6600,00 руб
В наличии

Наш адрес:

238300, Калининградская обл.
г. Гурьевск, ул. Безымянная 2,
офис: пн-пт: с 09.00 до 18.00, сб-вс: выходной
склад: пн-пт: с 09.00 до 17.00, сб-вс: выходной

Реквизиты:

ООО "Капелев и М",
ИНН 3917028860,
ОГРН 1063917025171

MAX
Здравствуйте! Чем помочь?